Chalet Confort avec terrasse proche du Pont du Gard
Chalet Confort 4/5 Pers Cuisine d'été 18 m² + 10m²
Réserver maintenant !
Location
En bref
Gamme Confort
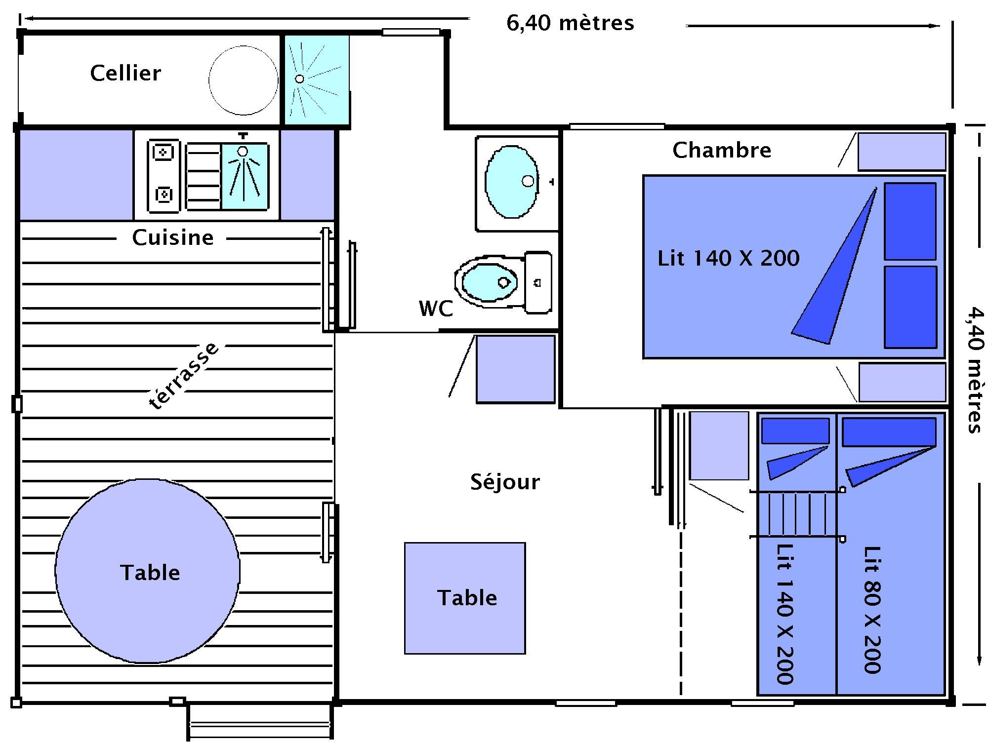
28 m²
Jusqu'à 5 personnes
1 chambre(s)
1 salle(s) de bain
Animaux autorisés
1 WC
Wi-Fi inclus
Arrivée 17:00
Départ 10:00
Le conseil de l'équipe
Parfait pour des vacances en famille ou entre amis, ce chalet combine confort et esprit camping grâce à sa cuisine extérieure. Imaginez-vous préparer vos repas sous les étoiles après une journée à explorer les grottes de Trabuc ou le charmant village d’Anduze. Un véritable havre de détente en pleine nature !
Espace de vie intérieur :
- Espaces de rangement
- Frigo avec compartiment freezer
- Cafetière à filtre
- Micro ondes
- Grille pain
- Set de nettoyage complet
Chambre principale :
- Lit 2 places (140x190) (couette et oreillers fournis)
- Penderie avec cintres
Espace Nuit :
- Lit 2 places (140x190) (couette et oreillers fournis)
- 1 Lit superposé 1 niveau (70x190)
Salle de bain :
- Douche
- Meuble vasque avec miroir
- WC
Espace de vie extérieur :
- Salon de jardin (table et chaises)
- Terrasse en bois couverte
- Mobilier de terrasse et bains de soleil
Services inclus :
- Wifi
- Une place de parking pour le véhicule
Services en option :
- Barbecue à gaz
- Animal de compagnie
- Ménage fin de séjour
- Linge de lit (Draps, housse de couette et taies d'oreillers)
- Serviettes
- Choix d'emplacement de préférence
- Kit bébé (lit, chaise haute, baignoire) (possibilité à l'unité)
Animaux admis sous conditions
Camping Sunêlia
Mobil-home
Parking gratuit
Terrasse
Wifi
Nos hébergements similaires
Envie de découvrir l'hébergement Mobil-Home Sunêlia Prestige Plus 3 chambres - 6 personnes ?
DécouvrirMobil-Home Sunêlia Prestige Plus 3 chambres - 6 personnes
33 m²
6
3
1
Autorisé
Climatisé
Découvrir !